Benissa:
Villa independiente con dos apartamentos separados a poca distancia del mar
Referencia: BENI-BE.H-936




































































































Precio:
895.000 €
Superficie útil aprox.:
251 m²
Terreno aprox.:
2.130 m²
Cantidad habitaciones:
7
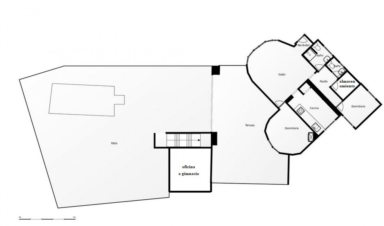
Esta vivienda se distribuye en dos plantas, conectadas por una escaleras exteriores. La planta superior cuenta con un amplio salón con chimenea, un comedor que da acceso a una agradable terraza con vistas al mar, una cocina totalmente equipada, dos dormitorios dobles y un cuarto de baño. En la planta baja hay un salón con comedor, una amplia cocina totalmente equipada, dos dormitorios dobles (uno de ellos con chimenea), un cuarto de baño, un aseo independiente y un lavadero con acceso al exterior.…
En el exterior, la parcela cuenta con una piscina de 8x4 metros automatizada con agua salada con terraza, un jacuzzi, ducha exterior caliente/frio, una cocina de verano con una terraza cubierta de 37m2 frente la piscina y varias zonas de descanso acogedoras. Hay una dependencia climatizada de 20m2 ideal para una oficina o pequeño gimnasio. El jardín es verde y fácil de mantener, con árboles frutales y otras plantas, con una iluminación nocturna muy bonita. La vivienda dispone de una cochera, una puerta de acceso automática y un amplio trastero.
Características
A solo 700 metros del mar
Orientación suroeste con vistas despejadas y al mar
Renovada en 2022
Aire acondicionado en todas las habitaciones
Doble acristalamiento, mosquiteras y persianas
Fibra óptica
Licencia turística (la planta baja se destina actualmente al alquiler vacacional)
Gran parcela llana con jardín, árboles frutales y zonas de descanso
La vivienda fue construida originalmente en 1977, pero ha sido completamente renovada en 2022 y equipada con comodidades modernas.
En una tranquila zona residencial, justo al lado de un bosque privado con mucha paz y tranquilidad y con una orientación abierta al suroeste, se encuentra esta vivienda independiente a solo 700 metros del mar Mediterráneo y calas. Idealmente situado entre Calpe y Moraira.
Tipo de casa: Villa
Comisionable: no
Cantidad dormitorios: 4
Cantidad baños: 2
Terraza: 3
Casa de invitados: sí
WC para huéspedes: sí
Jardín: sí
Chimenea: sí
Piscina: sí
Cantidad de aparcamientos: 1 x Plaza de aparcamiento exterior
Vista: Vistas al mar
Año de construcción: 1977
Clase energética: D
Nuestras ofertas no llevan ninguna comisión para el comprador.
Elaboramos nuestras ofertas con gran esmero. Las informaciones que facilitamos se basan en los datos de nuestros clientes. Por la exactitud e integridad no podemos asumir ninguna garantía ni responsabilidad. Salvo previa venta, cambio de precios y errores. Impuestos no incluidos en los precios.
También te podría gustar

Su Casita, S.L.
Teléfono: +34 966 790 012
Fax: +34 966 790 016
Teléfono móvil: +34 655 822 948 +49 163 672 2732 (DE)








































































