Torrevieja:
Appartements avec 3 chambres, 2 salles de bain, parking privé, piscines communes et jacuzzis chauffés
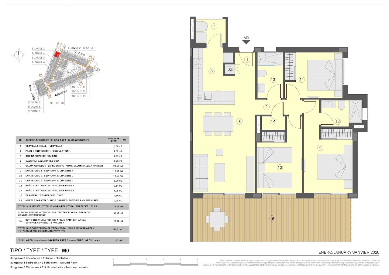
N° de l´objet: HA-TON-271-A03






















Prix:
à partir de 371.000 €
Surface habitable env.:
à partir de 108 m².
Nombre de pièces:
4
Ces modernes appartements d'une superficie de 108 m² - 120 m² (selon les modèles, terrasses comprises ) se composent de:
3 chambres à coucher,
2 salles de bains,
1 salon / salle à manger avec
cuisine moderne,
1 salle lessive et
1 terrasse (environ 16 m² - 26 m²).
La nouvelle résidence se située dans la zone de La Coronelita, à Torrevieja. Le projet dispose d’espaces communs complets comprenant piscines, jacuzzis, espaces verts et aires de jeux pour enfants, dans un environnement calme et bien desservi. Le complexe résidentiel est composé de 112 logements au total, répartis en bungalows de deux et trois chambres. Le complexe résidentiel est situé tout près des principales plages de Torrevieja et bénéficie d’un excellent accès au centre-ville, aux services, aux zones de loisirs ainsi qu’aux terrains de golf de référence de la région.
Les logements ont été conçus pour tirer le meilleur parti de la lumière naturelle et du climat agréable de la Méditerranée. Ils disposent d’espaces extérieurs tels que jardins, terrasses ou solariums, idéaux pour profiter de l’air libre toute l’année. Ils comprennent également un débarras et des zones de stationnement.
Type d´appartement: Rez-de-chaussée
Soumis à commission: Non
Cuisine: Cuisine aménagée
Nombre de chambres à coucher: 3
Nombre de salles de bain: 2
Terrasse: 1
Jardins: Oui
Piscine: Oui
Nombre des places de parking: 1 x Garage souterrain
Ameublement: En partie meublé
Qualité de l´équipement: Haut de gamme
État: Premier occupant
Classe énergétique: A
Nos offres n"ont aucune commission pour l"acheteur.
Nous préparons nos offres avec grand soin. Les informations que nous facilitons se basent avec les données de nos clients. Pour l"exactitude et l"exhaustivité (l"intégrité) nous ne pouvons pas assumer une garantie ni responsabilité. Sauf si il y a eu une vente avant, changement de prix ou des erreures. Les impots ne sont pas inclus dans les prix. Pour une nouvelle propriété, il faut rajouter I.V.A. et pour une propriété de deuxième main I.T.P.
Vous pourriez aussi aimer
Appartements modernes et confortables au dernier étage avec 2 chambres dans un complexe de golf
Penthouses de 2 chambres avec piscine communautaire à seulement 300 m de la mer

Su Casita, S.L.
Téléphone: +34 966 790 012
Fax: +34 966 790 016
Portable: +34 655 822 948 +49 163 672 2732 (DE)





































