Entrenaranjos:
Bungalows bajos de 2 dormitorios y 2 baños con pre-instalación aire acondicionado y suelo radiante en baños
Referencia: HA-ENN-221-A01






















Precio:
desde 261.900 €
Superficie útil aprox.:
desde 117 m²
Cantidad habitaciones:
3
OFERTA DE LANZAMIENTO: JACUZZI GRATIS
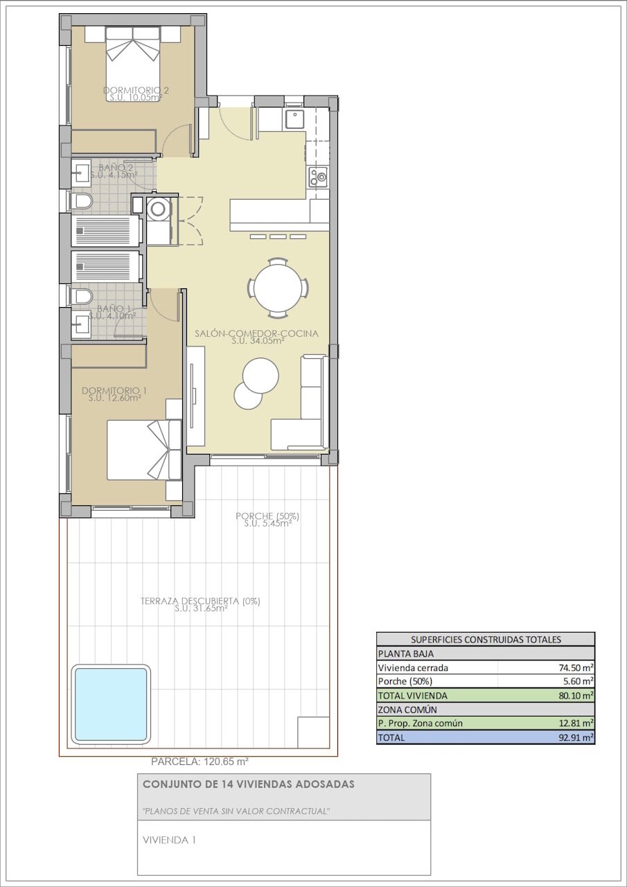
Maravillosos bungalows bajos que constan de una superficie construida de unas 117 m² - 122 m² (incluyendo terrazas) con
2 dormitorios,
2 baños (1 en-suite),
1 salón / comedor con
cocina moderna y
1 terraza (a unos 43 m² - 46 m²).
Pequeño complejo en que se construyen 14 bungalows en estilo moderno utilizando materiales de alta calidad. Es posible instalar un jacuzzi.
Tipo de vivienda: Bajo
Comisionable: no
Cocina: Cocina completa
Cantidad dormitorios: 2
Cantidad baños: 2
Terraza: 1
Mobiliario: Semi-amueblado
Calidad del mobiliario: De calidad
Estado: A estrenar
Clase energética: En curso
Nuestras ofertas no llevan ninguna comisión para el comprador.
Elaboramos nuestras ofertas con gran esmero. Las informaciones que facilitamos se basan en los datos de nuestros clientes. Por la exactitud e integridad no podemos asumir ninguna garantía ni responsabilidad. Salvo previa venta, cambio de precios y errores. Impuestos no incluidos en los precios.
También te podría gustar
Bungalows altos modernos de 2 dormitorios en un complejo de golf

Su Casita, S.L.
Teléfono: +34 966 790 012
Fax: +34 966 790 016
Teléfono móvil: +34 655 822 948 +49 163 672 2732 (DE)















































