San Juan de los Terreros:
Apartamentos de 3 dormitorios con parking en sótano y piscina comunitaria a tan solo 600 m de la playa
Referencia: HA-STN-140-A05




























Precio:
desde 228.000 €
Superficie útil aprox.:
desde 110 m²
Cantidad habitaciones:
4
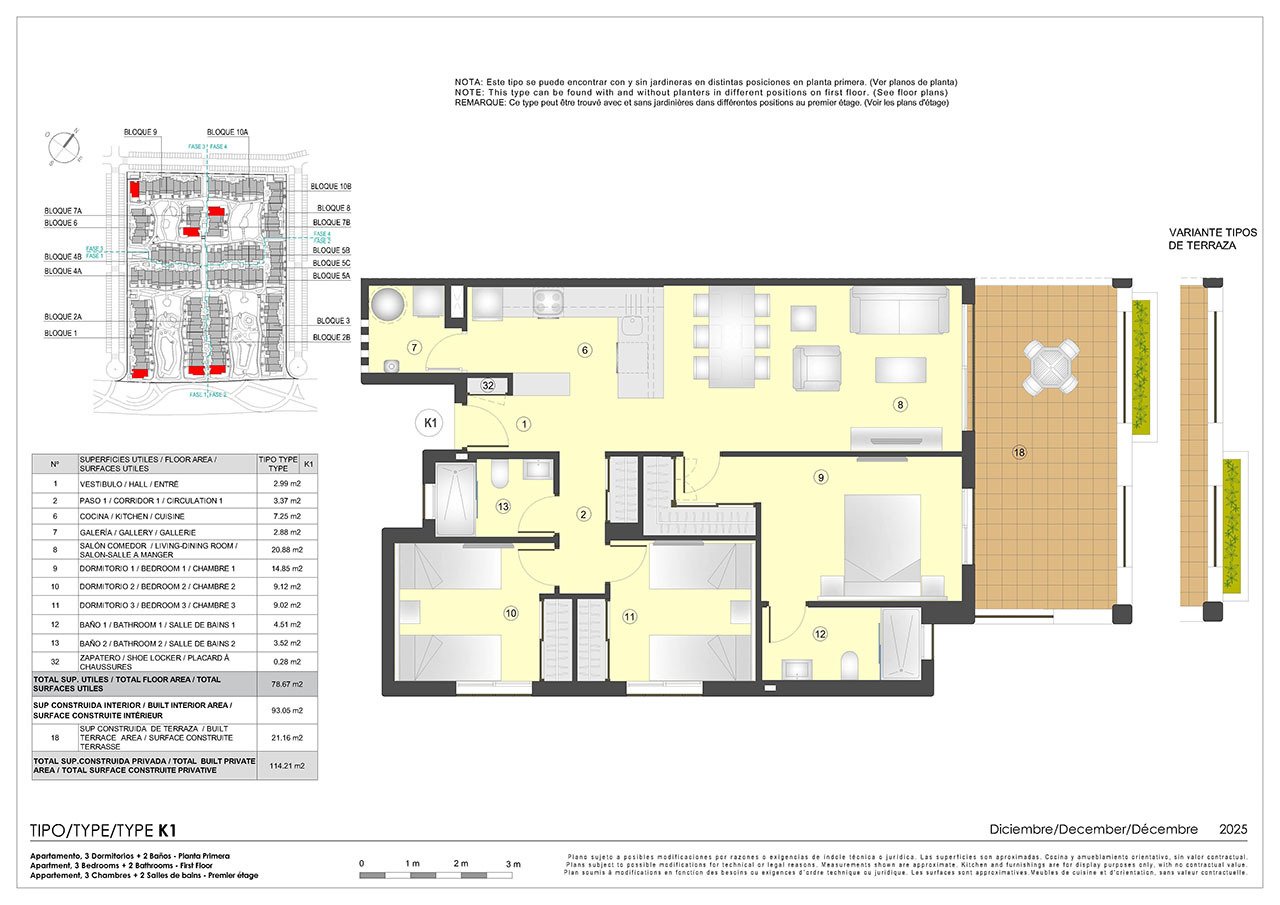
Maravillosos apartamentos en planta baja o primera, que estan situados muy cerca de la playa y que constan de una superficie de unas 110 m² (incluyendo terrazas) con
3 dormitorios,
2 baños (1 en-suite),
1 salón / comedor con
cocina moderna,
1 lavadero y
1 porche / terraza (a unos 21 m²).
El complejo cuenta con vivienddas de 1, 2 y 3 dormitorios con amplias terrazas. Las viviendas en planta baja disponen de un porche cubierto y jardín . Los propietarios de las viviendas situadas en la primera planta sacarán todo el partido al sol almeriense en sus grandes terrazas en planta. También los interesados en un ático tienen a su alcance un amplio espacio exterior en forma de solarium con vistas al mar, al que pueden acceder desde su vivienda y que está dotado con ducha, grifo, punto de luz y toma de televisión y que permite, además, la colocación de barbacoa.
Los apartamentos se ubican a corta distancia caminando de la Playa Los Nardos y Playa La Entrevista, en la costa de Almería, situado entre los municipios de Águilas y Vera. Se trata de una urbanización diseñada con grandes jardines y plazas interiores que incluyen una gran zona de piscinas y jacuzzi, bordeada por una amplia pradera de césped natural con duchas y sombrillas de brezo, que goza además de WIFI comunitario. Sus generosas zonas comunes cuentan, además, con una zona de juegos infantiles, todo ello en un perímetro cerrado de seguridad.
Tipo de vivienda: Apartamento
Comisionable: no
Cocina: Cocina completa
Cantidad dormitorios: 3
Cantidad baños: 2
Terraza: 1
Jardín: sí
Piscina: sí
Sótano: no
Cantidad de aparcamientos: 1 x Garaje subterráneo
Mobiliario: Semi-amueblado
Calidad del mobiliario: De calidad
Estado: A estrenar
Clase energética: C
Nuestras ofertas no llevan ninguna comisión para el comprador.
Elaboramos nuestras ofertas con gran esmero. Las informaciones que facilitamos se basan en los datos de nuestros clientes. Por la exactitud e integridad no podemos asumir ninguna garantía ni responsabilidad. Salvo previa venta, cambio de precios y errores. Impuestos no incluidos en los precios.
También te podría gustar

Su Casita, S.L.
Teléfono: +34 966 790 012
Fax: +34 966 790 016
Teléfono móvil: +34 655 822 948 +49 163 672 2732 (DE)














































